- НаличиеВ наличии
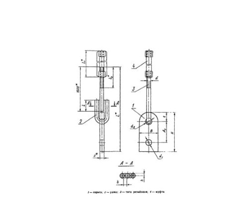
Тяга резьбовая с серьгой и муфтой предназначена для надёжного крепления и регулировки положения трубопроводных опор в системах промышленных коммуникаций. Изделие обеспечивает необходимую жёсткость и устойчивость конструкций, эффективно компенсируя тепловые расширения и вибрационные нагрузки.
Ключевым преимуществом является вариативность выбора под конкретные проектные задачи. Доступны различные диаметры (16, 20, 24, 28, 30, 36, 45, 50 мм) и грузоподъёмность (от 15 до 150 кН), что позволяет подобрать оптимальное решение для любого объекта.
Изготовленные из качественных марок стали (сталь 20, сталь 3), тяги отличаются высокой прочностью, долговечностью и устойчивостью к коррозии. Каждое изделие соответствует строгим стандартам качества и рассчитано на длительную эксплуатацию в условиях значительных механических напряжений.
Нет отзывов об этом товаре.
Пока нет вопросов об этом товаре. Станьте первым!
